đặt mua báo in
Báo đầu tư
VIETNAM INVESTMENT REVIEW
Chứng khoán
Nhận định
Quốc tế
Trái phiếu
Phái sinh
Bên lề
Vĩ mô
Chính trị
Đầu tư
Nhân sự
Thông tin doanh nghiệp
Địa ốc
Pháp luật
Cung - Cầu
Quy hoạch
Vật liệu
Trải nghiệm sống
Quốc tế
Tài chính - Ngân hàng
Ngân hàng
Bảo hiểm
Thuế - Hải Quan
Tư vấn tài chính
Dịch vụ tài chính
Vàng - Ngoại tệ
Bảo hiểm xã hội
thêm
Thương trường
Cuộc sống
Số hóa
Pháp lý kinh doanh
Địa ốc
Pháp luật
Cung - Cầu
Quy hoạch
Vật liệu
Trải nghiệm sống
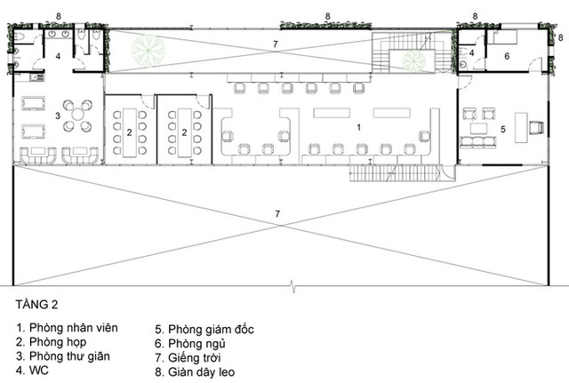
Xưởng may xanh mướt bị nhầm là resort ở Sài Gòn
Tác giả
Theo Vnexpress
02/10/2017 16:14
In bài
Chia sẻ
Chia sẻ
Công trình bỏ hoang biến thành một khối nhà khang trang, có giàn dây leo phủ kín.
Tin bài liên quan
Khách sạn Chisca - Khôi phục một biểu tượng
Quy hoạch ga Hà Nội, từ góc nhìn văn hóa
Vì sao nhà đầu tư “mê” Sun Premier Village Kem Beach Resort?
In bài
Chia sẻ
Từ Khoá
xây dựng
công trình
không gian
chủ đầu tư
tòa nhà
văn phòng
cây xanh
KTS
Tin cùng chuyên mục
Đồng Tháp thành lập Cụm công nghiệp Quảng Khánh (giai đoạn 1) vốn gần 217 tỷ đồng
19/09/2021 08:28
Thành lập Hội đồng kiểm tra nhà nước về công tác nghiệm thu công trình xây dựng
02/04/2021 15:14
Quẻ Dịch chứng khoán 2021: “Lữ khách”
17/02/2021 06:58
Dự báo 2021 qua góc nhìn phong thủy
12/02/2021 00:02
Chuẩn bị mâm cơm cúng tất niên, cúng giao thừa sao cho đúng?
10/02/2021 08:54
Cải tạo kiến trúc, phong thủy biệt thự
12/09/2020 07:35
Tìm cổ phiếu
Thị trường
Bảng giá
Điểm Nhấn
"Cú rơi" của nhóm chứng khoán trước thềm nâng hạng
Sáu nguyên nhân khiến giá nhà đất tại Việt Nam tăng cao nhất khu vực
Phó chủ tịch FLC: “Không phải nơi nào đẹp cũng trở thành điểm đến…”
Bao giờ vốn ngoại “xoay trục”?
“Vàng võ” vì vàng...
Xem thêm
Báo cáo phân tích
MBS: Khuyến nghị khả quan dành cho cổ phiếu PNJ
31/03/2026 17:00
MBS: Khuyến nghị tích cực dành cho cổ phiếu HPG và HSG
30/03/2026 14:05
MBS: Khuyến nghị khả quan dành cho cổ phiếu KBC
28/03/2026 15:33
MBS : Khuyến nghị khả quan dành cho cổ phiếu PDR
28/03/2026 15:33
Đón đọc
Báo Đầu tư số 26
Các số khác
Đón đọc
Vietnam Investment Review số 1798
Các số khác
Đón đọc
Báo Đầu tư Chứng khoán số 13
Các số khác
Đại hội cổ đông
/
Lịch sự kiện
02/04/2026
DVG: Ngày GDKHQ tham dự Đại hội đồng cổ đông thường niên năm 2026
MBS: Ngày GDKHQ mua cổ phiếu phát hành thêm
03/04/2026
SHB: Ngày GDKHQ mua cổ phiếu phát hành thêm
07/04/2026
AMS: Ngày GDKHQ tham dự đại hội đồng cổ đông thường niên năm 2026
GE2: Ngày GDKHQ tham dự Đại hội đồng cổ đông thường niên năm 2026
09/04/2026
VIE: Ngày GDKHQ tham dự Đại hội đồng cổ đông thường niên năm 2026
10/04/2026
ABC: Ngày GDKHQ tham dự Đại hội đồng cổ đông thường niên năm 2026
HTT: Ngày GDKHQ tham dự Đại hội đồng cổ đông thường niên năm 2026
CC1: Ngày GDKHQ tham dự Đại hội đồng cổ đông thường niên năm 2026
LCM: Ngày GDKHQ tham dự Đại hội đồng cổ đông thường niên năm 2026
13/04/2026
DCV: Ngày GDKHQ tham dự Đại hội đồng cổ đông thường niên năm tài chính 2025
C22: Ngày GDKHQ tham dự Đại hội đồng cổ đông thường niên năm 2026
TMW: Ngày GDKHQ tham dự Đại hội đồng cổ đông thường niên năm 2026
APG: Ngày GDKHQ tham dự Đại hội đồng cổ đông thường niên năm 2026
14/04/2026
HHC: Ngày GDKHQ tham dự Đại hội đồng cổ đông thường niên năm 2026
RAT: Ngày GDKHQ tham dự họp Đại hội đồng cổ đông thường niên năm 2026
TAN: Ngày GDKHQ tham dự Đại hội đồng cổ đông thường niên năm 2026
VCP: Ngày GDKHQ tham dự Đại hội đồng cổ đông thường niên năm 2026
ILS: Ngày GDKHQ tham dự Đại hội đồng cổ đông thường niên năm 2026
OGC: Ngày GDKHQ tham dự đại hội đồng cổ đông thường niên năm 2026
KDC: Ngày GDKHQ tham dự Đại hội đồng cổ đông thường niên năm 2026
TDM: Ngày GDKHQ nhận cổ tức năm 2025 bằng tiền
15/04/2026
VIR: Ngày GDKHQ tham dự Đại hội cổ đông thường niên năm 2026
CTI: Ngày GDKHQ tham dự Đại hội đồng cổ đông thường niên năm 2026
16/04/2026
DBM: Ngày GDKHQ tham dự Đại hội đồng cổ đông thường niên năm 2026
PHR: Ngày GDKHQ tham dự Đại hội cổ đông thường niên năm 2026
CX8: Ngày GDKHQ tham dự Đại hội đồng cổ đông thường niên năm 2026
17/04/2026
MEF: Ngày GDKHQ tham dự Đại hội đồng cổ đông thường niên năm 2026
PPC: Ngày GDKHQ tham dự Đại hội đồng cổ đông thường niên năm 2026
QNW: Ngày GDKHQ tham dự Đại hội đồng cổ đông thường niên năm 2026
20/04/2026
YTC: Ngày GDKHQ tham dự Đại hội đồng cổ đông thường niên năm 2026
28/04/2026
SBH: Ngày GDKHQ tham dự Đại hội đồng cổ đông thường niên năm 2026
22/05/2026
ASP: Ngày GDKHQ tham dự Đại hội đồng cổ đông thường niên năm 2026
01/04/2026
Công ty cổ phần BV Life (VCM – HNX)
02/04/2026
CTCP Nhựa sinh thái Việt Nam (ECO – UpCoM)
03/04/2026
CTCP Tập đoàn Nagakawa (NAG – HNX)
04/04/2026
Công ty cổ phần Xây dựng 47 (C47 – HOSE)
05/04/2026
CTCP Phân phối Top One (TOP – UpCoM)
CTCP Dược - Thiết bị Y tế Đà Nẵng (DDN – UpCoM)
07/04/2026
CTCP Sonadezi Long Bình (SZB – HNX)
CTCP Giao nhận vận tải Ngoại Thương (VNT – HNX)
09/04/2026
CTCP Phát triển hạ tầng Kỹ thuật (IJC – HOSE)
10/04/2026
CTCP Kim Khí TP.HCM – Vnsteel (HMC – HOSE)
CTCP Dược Trung ương 3 (TW3 – UpCoM)
CTCP Xuất nhập khẩu Thủy sản Hà Nội (SPH – UpCoM)
CTCP Quốc tế Phương Anh (PAS – UpCoM)
CTCP Thép Thủ Đức – VNSTEEL (TDS – UpCoM)
CTCP Ống thép Việt Đức VG PIPE (VGS – HNX)
Công ty cổ phần VICOSTONE (VCS – HNX)
11/04/2026
CTCP Đầu tư Xây dựng và Vật liệu Đồng Nai (DND – UpCoM)
CTCP Dịch vụ Giải trí Hà Nội (HES – UpCoM)
CTCP Thương mại Hà Tây (HTT – UpCoM)
Công ty cổ phần Thương mại Hà Tây (HTT - UpCOM)
12/04/2026
Công ty cổ phần May Xuất khẩu Phan Thiết (PTG – UpCoM)
13/04/2026
CTCP Vận tải xăng dầu VIPCO (VIP – HOSE)
CTCP Thương mại Bia Sài Gòn Sông Tiền (SST – UpCoM)
CTCP Group Bắc Việt (BVG – UpCoM)
15/04/2026
Công ty cổ phần RedstarCera (TRT – UpCoM)
Tổng Công ty Hàng hải Việt Nam – CTCP (MVN – UpCoM)
Ngân hàng TMCP Phương Đông (OCB – HOSE)
CTCP Xây dựng và Giao thông Bình Dương (BCE – HOSE)
CTCP Cơ khí và Khoáng sản Hà Giang (HGM – HNX)
CTCP Chứng khoán Đầu tư tài chính Việt Nam (VIG – HNX)
Công ty Cổ phần Vinaceglass (CGV – UpCoM)
CTCP Vicem Bao bì Bỉm Sơn (BPC – HNX)
16/04/2026
CTCP Phát triển Bất động sản Phát Đạt (PDR - HOSE)
Tổng CTCP Thương mại Kỹ thuật và Đầu tư (PEG – UpCoM)
CTCP Chứng khoán Rồng việt (VDS – HOSE)
CTCP Xây lắp III Petrolimex (PEN – HNX)
17/04/2026
Công ty cổ phần PVI (PVI – HNX)
CTCP Chứng khoán Sài Gòn - Hà Nội (SHS – HNX)
Tổng Công ty Hóa dầu Petrolimex – CTCP (PLC – HNX)
CTCP Xuất nhập khẩu Petrolimex (PIT – HOSE)
CTCP Thực phẩm Sao Ta (FMC – HOSE)
Công Ty Cổ Phần Vật Tư - Xăng Dầu (COM – HOSE)
CTCP Xăng dầu Dầu khí Hưng Yên (POB – UpCoM)
CTCP Viễn thông FPT (FOX – UpCoM)
Công ty cổ phần Traphaco (TRA – HOSE)
18/04/2026
CTCP Đầu tư Thế giới Di động (MWG – HOSE)
Tổng CTCP Thiết bị điện Đông Anh (TBD – UpCoM)
CTCP Tập đoàn Điện Quang (DQC – HOSE)
CTCP Logistics Portserco (PRC – HNX)
Ngân hàng TMCP Quân Đội (MBB – HOSE)
19/04/2026
CTCP Bao bì và In Nông nghiệp (INN – HNX)
20/04/2026
CTCP Công trình Giao thông Hà Nội (GH3 – UpCoM)
CTCP Vận tải và Dịch vụ Petrolimex Hải Phòng (PTS – HNX)
CTCP Giống cây trồng Miền Nam (SSC – HOSE)
CTCP Chứng khoán VPBank (VPX – HOSE)
21/04/2026
CTCP Môi trường Sonadezi (SZE – UpCoM)
Ngân hàng TMCP Thịnh vượng và Phát triển (PGB – UpCoM)
CTCP Fecon (FCN – HOSE)
CTCP Dược Hậu Giang (DHG – HOSE)
22/04/2026
Công ty Cổ phần COMA 18 (CIG – HOSE)
CTCP Vật liệu xây dựng Bưu điện (PCM – UpCoM)
Tổng Công ty Khoáng sản TKV – CTCP (KSV – HNX)
CTCP Bia Hà Nội – Thanh Hóa (THB – HNX)
CTCP Vận tải Thủy – Vinacomin (WTC – UpCoM)
CTCP Vận tải và Chế biến Than Đông Bắc (VDB – UpCoM)
CTCP Sữa Việt Nam – Vinamilk (VNM – HOSE)
Ngân Hàng TMCP Sài Gòn Thương Tín (STB – HOSE)
CTCP Thủy điện Srok Phu Miêng IDICO (ISH – UpCoM)
CTCP Cấp nước Thủ Đức (TDW – HOSE)
CTCP Cấp nước Bến Thành (BTW – HNX)
CTCP Vận tải xăng dầu VITACO (VTO – HOSE)
Công ty cổ phần Thế giới số (DGW – HOSE)
Công ty cổ phần Everpia (EVE – HOSE)
CTCP Chứng khoán Tiên Phong (ORS – HOSE)
CTCP Hơi Kỹ nghệ Que Hàn (SVG – UpCoM)
CTCP Kinh doanh Khí miền Nam (PGS – HNX)
CTCP Tập đoàn Yeah1 (YEG – HOSE)
23/04/2026
Công ty cổ phần Thủy điện - Điện lực 3 (DRL - HOSE)
CTCP Chứng khoán SSI (SSI – HOSE)
Ngân hàng TMCP Kiên Long (KLB – HOSE)
CTCP Thủy điện Nước trong (NTH – HNX)
CTCP Phân phối khí Thấp áp dầu khí Việt Nam (PGD – HOSE)
CTCP Phát triển Thương mại Viễn Đông (VID – HOSE)
CTCP Kho Vận Miền Nam (STG – HOSE)
24/04/2026
Công ty cổ phần Thaiholdings (THD – HNX)
CTCP Xây lắp Đường ống Bể chứa Dầu khí (PXT – UpCoM)
CTCP Pin Ắc quy miền Nam (PAC – HOSE)
CTCP Bia Hà Nội - Hải Phòng (BHP – UpCoM)
CTCP Cao su Đà Nẵng (DRC – HOSE)
Công ty cổ phần DAP – VINACHEM (DDV – UpCoM)
Công ty cổ phần Ngân Sơn (NST – HNX)
CTCP Hóa chất Cơ bản miền Nam (CSV – HOSE)
CTCP Dịch vụ Sân bay Quốc tế Cam Ranh (CIA – HNX)
CTCP Phát triển Điện lực Việt Nam (VPD – HOSE)
Công ty cổ phần 397 (BCB – UpCoM)
Cấp nước Huế (HWS – UpCoM)
CTCP Bê tông Phan Vũ Hà Nam (FCM – HOSE)
Ngân hàng TMCP Tiên Phong – TPBank (TPB – HOSE)
CTCP Thủy điện Hủa Na (HNA – HOSE)
Ngân hàng TMCP Công thương Việt Nam – Vietinbank (CTG – HOSE)
CTCP Cảng Sài Gòn (SGP – UpCoM)
CTCP Tập đoàn Kỹ nghệ Gỗ Trường Thành (TTF – HOSE)
CTCP Cảng Rau Quả (VGP – HNX)
CTCP SAM Holdings (SAM – HOSE)
CTCP Tập đoàn Xây dựng Hòa Bình (HBC – UpCoM)
Ngân hàng TMCP Đầu tư và Phát triển Việt Nam – BIDV (BID – HOSE)
25/04/2026
CTCP Thực phẩm Bích Chi (BCF – HNX)
CTCP Đầu tư Nam Long (NLG – HOSE)
Công ty cổ phần LIZEN (LCG – HOSE)
CTCP Đầu tư Sản xuất và Thương mại HCD (HCD – HOSE)
CTCP Đầu tư BKG Việt Nam (BKG – HOSE)
28/04/2026
Công ty cổ phần Miza (MZG – UpCoM)
Tổng công ty Điện lực TKV – CTCP (DTK – HNX)
CTCP Đầu tư - Kinh doanh nhà (ITC – HOSE)
CTCP Nhựa Thiếu niên Tiền Phong (NTP – HNX)
29/04/2026
Công ty cổ phần 22 (C22 – UpCoM)
CTCP Đầu tư Phát triển GAS Đô thị (PCG – UpCoM)
CTCP Kỹ thuật và Ô tô Trường Long (HTL – HOSE)
CTCP Đại Thiên Lộc (DTL – HOSE)
Công ty cổ phần 22 (C22 - UpCOM)
30/04/2026
CTCP Dệt may- Đầu tư- Thương mại Thành Công (TCM – HOSE)
CTCP Bao bì Tân Khánh An (TKA – UpCoM)
CTCP Tập đoàn Sunshine (KSF – HNX)
CTCP Masan High-Tech Materials (MSR – UpCoM)
CTCP Chứng khoán DSC (DSC – HOSE)
CTCP Phân bón và Hóa chất Dầu khí Miền Trung (PCE – HNX)
04/05/2026
CTCP Thép Pomina (POM – UpCoM)
07/05/2026
CTCP Phát triển Đô thị và Khu công nghiệp Cao su Việt Nam (VRG – UpCoM)
08/05/2026
CTCP Tư vấn Xây dựng Vinaconex (VCT – UpCoM)
10/05/2026
CTCP DIC - Đồng Tiến (DID – UpCoM)
Công ty cổ phần MEINFA (MEF - UpCOM)
11/05/2026
CTCP Xây dựng và Năng lượng VCP (VCP – UpCoM)
Công ty cổ phần Xây dựng và Năng lượng VCP (VCP - UpCOM)
12/05/2026
CTCP Clever Group (ADG – HOSE)
13/05/2026
CTCP Tập đoàn Đầu tư Thăng Long (TIG – HNX)
CTCP Truyền thông VMG (ABC – UpCoM)
Công ty cổ phần truyền thông VMG (ABC - UpCOM)
14/05/2026
CTCP Công nghệ Viễn thông VI TE CO (VIE – UpCoM)
Công ty cổ phần Công nghệ Viễn thông VI TE CO (VIE - UpCOM)
Tổng Công ty Xây dựng Số 1 - CTCP (CC1 - UpCOM)
20/05/2026
CTCP Dược - Vật tư y tế Đắk Lắk (DBM - UpCOM)
Công ty cổ phần Xuất nhập khẩu Y tế Thành phố Hồ Chí Minh (YTC - UpCOM)
Công ty cổ phần Quản lý quỹ Đầu tư Dragon Capital Việt Nam (DCV - UpCOM)
CTCP Quản lý quỹ Đầu tư Dragon Capital Việt Nam
21/05/2026
CTCP Tập đoàn KIDO (KDC – HOSE)
Tổng CTCP Phong Phú (PPH – UpCoM)
Công ty Cổ phần Tập đoàn KIDO (KDC - HOSE)
22/05/2026
Công ty cổ phần Vận tải và Thương mại Đường sắt (RAT - UpCOM)
CTCP Nhiệt điện Phả Lại (PPC – HOSE)
Tổng CTCP khí Việt Nam (GAS – HOSE)
CTCP Đại lý Vận tải SAFI (SFI – HOSE)
CTCP Kết cấu kim loại và Lắp máy Dầu khí (PXS – UpCoM)
Công ty cổ phần Nhiệt điện Phả Lại (PPC - HOSE)
23/05/2026
Công ty cổ phần NTACO (ATA – UpCoM)
24/05/2026
CTCP Đầu tư Việt Việt Nhật (VNH – UpCoM)
CTCP Du lịch Quốc tế Vũng Tàu (VIR - UpCOM)
26/05/2026
CTCP Đầu tư Khu công nghiệp Dầu khí Long Sơn (PXL – UpCoM)
27/05/2026
CTCP Đầu tư và Xây lắp Constrexim số 8 (CX8 – HNX)
Công ty cổ phần Đầu tư và Xây lắp Constrexim số 8 (CX8 - HNX)
28/05/2026
CTCP Đầu tư Phát triển Xây dựng Hội An (DIH – HNX)
CTCP Cao su Phước Hoà (PHR – HOSE)
Tổng CTCP Xây lắp Dầu khí Việt Nam (PVX – UpCoM)
Công ty cổ phần cao su Phước Hoà (PHR - HOSE)
29/05/2026
Công ty cổ phần SEAREFICO (SRF – HOSE)
30/05/2026
CTCP Dược Lâm Đồng – Ladophar (LDP – HNX)
10/06/2026
Tổng Công ty Phát điện 2 - Công ty cổ phần (GE2 – UpCoM)
Tổng Công ty Phát điện 2 - Công ty cổ phần (GE2 - UpCOM)
18/06/2026
CTCP Thủy điện Sông Ba Hạ (SBH – UpCoM)
Công ty cổ phần Thủy điện Sông Ba Hạ (SBH - UpCOM)
26/06/2026
CTCP Tập đoàn dầu khí An pha (ASP – HOSE)
Công ty Cổ phần Tập đoàn dầu khí An pha (ASP - HOSE)
30/06/2026
Công ty cổ phần Cơ khí Xây dựng AMECC (AMS - UpCOM)